pregled nekretnine ID: 363366
prodaja

201m² 200.000€
Beograd, Čukarica, Sremčica, Beogradska

Objavljen: 10.10.2025. / Izmenjen: 10.10.2025.


Tip: kuća

Cena: 200000.00 EUR

Površina: 201.00 m2

Grad: Beograd

Opština: Čukarica

Deo: Sremčica

Ulica: Beogradska

Prijavi problem  |  Pošalji na e-mail


Kontakt:

Moj Kvadrat doo

011/334 88 36

065/303 94 39

http://www.kvadratnekretnine.com

Opis:

  • Uknjiženo
  • Telefon
  • Kablovska
  • Internet
  • Parking

Čukarica, Sremčica - Beogradska

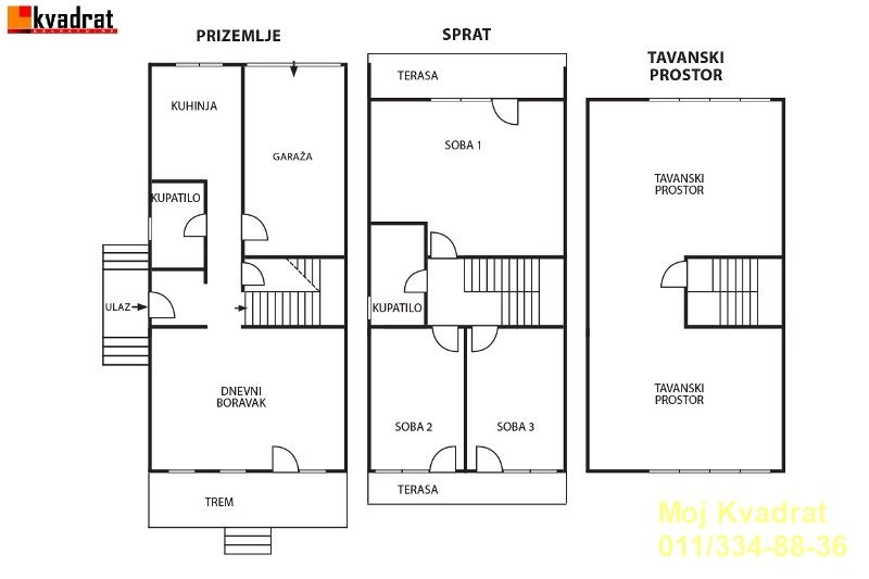
kuća, 201m2, lođe, PR+I+PTK, grejanje na gas, telefon, internet, KATV, garaža 16m2, plac 4.5a

Nudimo vam izuzetnu kuću u predgrađu Beograda. Kuća je dvojna, podeljena po vertikali. Sve je fizički odvojeno. Prodaje se sa sopstvenim dvorištem od 4.5 ara. Plac je uknjižen i fizički ograđen. Nalazi se u glavnoj ulici i povučena je od uličnog fronta, što je čini idealnom kako za stanovanje, tako i za različite delatnosti. Nalazi se nedaleko od Ibarske magistrale i Lipovačke šume, u mirnom okruženju.

Kuća se prostire na tri nivoa - prizemlje, sprat i potkrovlje.

U prizemlju je prostrana dnevna soba sa kuhinjom i trpezarijom. Na ovom nivou se nalazi i ostava, kao i garaža koja je fizički potpuno odvojena celina.

Na spratu su tri spavaće sobe sa lođama, kao i moderno kupatilo.

Potkrovlje je u sivoj fazi i može se urediti prema potrebi budućih vlasnika.

Kuća je kompletno renovirana 2021. godine - krov, fasada, unutrašnja i spoljašnja stolarija, nove instalacije (struja voda, grejanje), nov parket, pločice, sanitarije... Poseduje internet i kablovsku (operater SBB), a mrežna i TV instalacija je dostupna u svim sobama.

U dnu placa je nedavno izgrađen prizemni objekat do koga je sprovedena struja i može se koristiti za različite namene.

Kuća je uknjižena na 118m2, garaža na 16m2.

Agencijska provizija 2%

Agent: Bogdan Obradović 064/29-70-370 (licenca br.5599)

♦ I am excited to present an outstanding house in the suburbs of Belgrade that is simply a cut above the rest. This semi-detached property is thoughtfully divided vertically, with each section physically separated for maximum privacy. It includes a private yard of 4.5 ares, which is fully and securely fenced.
Positioned on the main street yet set back from the road, this house offers an ideal setting for both residential living and diverse commercial activities. Its prime location near the Ibarska Highway and the Lipovačka Forest guarantees a peaceful environment without sacrificing convenience.

♦The house spans three well-designed levels. The ground floor boasts a spacious living room that seamlessly connects to the kitchen and dining area. You’ll also find a dedicated storage room and a garage that is a complete standalone unit. On the upper floor, there are three generous bedrooms equipped with loggias, as well as a stylish modern bathroom. The basement is in the gray phase, offering a blank canvas for future owners to tailor it to their specific needs.

♦ This property was completely renovated in 2021, with upgrades including a new roof, facade, interior and exterior carpentry, and brand-new installations for electricity, plumbing, and heating. The new parquet flooring, tiles, and sanitary facilities enhance the home’s appeal. Internet and TV services are provided by SBB, with connections available in all rooms.

♦ At the bottom of the plot, a newly constructed ground-floor building has been established, complete with electricity, making it ideal for various purposes. This property is a remarkable opportunity that you don’t want to miss!

House is registrated on 118m2, garage on 16m2.

Agency commission 2%

Agent: Bogdan Obradović 064/29-70-370 (licence number 5599)






0/1000