pregled nekretnine ID: 364673
prodaja

250m² 330.000€
Beograd, Voždovac, Dušanovac, Miodraga Pavlovića

Objavljen: 22.11.2025. / Izmenjen: 22.11.2025.


Tip: kuća

Cena: 330000.00 EUR

Površina: 250.00 m2

Grad: Beograd

Opština: Voždovac

Deo: Dušanovac

Ulica: Miodraga Pavlovića

Prijavi problem  |  Pošalji na e-mail


Kontakt:

Moj kvadrat doo

011/334-88-36

065/3039439

www.kvadratnekretnine.com

Opis:

  • Uknjiženo
  • Telefon
  • Parking
  • Kanalizacija
  • Terasa
  • Interfon
  • Podrum

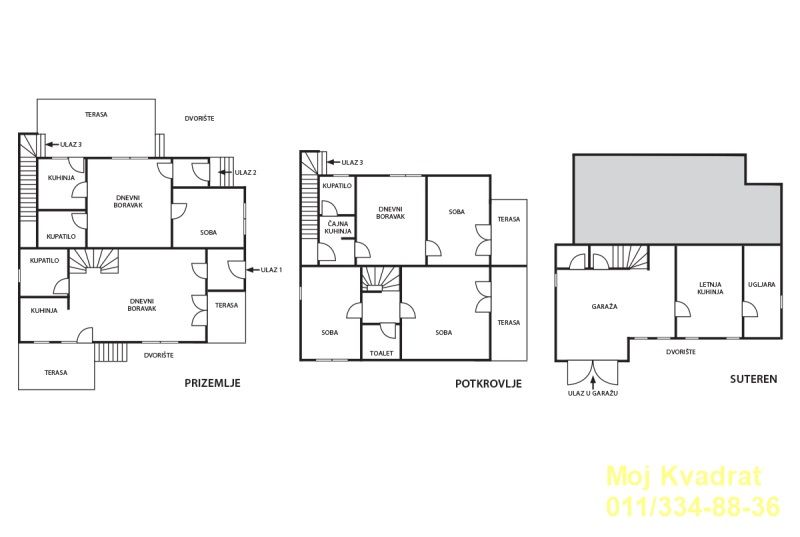
Voždovac, Dušanovac - Miodraga Pavlovića

kuća, 250m2 (terasa 50m2), SUT+PR+PTK, EG, telefon, interfon, podrum, parking, garaža, struja, voda, kanalizacija, asfalt

U ponudi kuća bez ulaganja, sama na placu, podeljena na tri stambene jedinice. Zanimljiva kako za život, tako i za poslovni prostor, ali i za kombinaciju oba.

Direktan izlaz na auto-put koji uskoro menja svoju primarnu namenu.

Uknjižena na 105m2, mereno ima 250m2.

Agencijska provizija 2%.

Agent: Igor Bambić 063/20-99-33 (licenca br.403)






0/1000