pregled nekretnine ID: 367095
prodaja

99m² 489.000€
Beograd, Palilula, Centar (Palilula), Vojvode Dobrnjca

Objavljen: 12.02.2026. / Izmenjen: 12.02.2026.


Tip: poslovni prostor

Cena: 489000.00 EUR

Površina: 99.00 m2

Grad: Beograd

Opština: Palilula

Deo: Centar (Palilula)

Ulica: Vojvode Dobrnjca

Prijavi problem  |  Pošalji na e-mail


Kontakt:

Moj Kvadrat doo

011/334 88 36

065/303 94 39

http://www.kvadratnekretnine.com

Opis:

  • Uknjiženo
  • Internet
  • Klima
  • Centralno grejanje
  • Kanalizacija

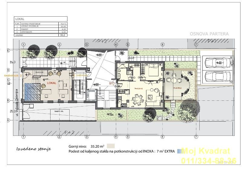
Palilula, Botanička bašta - Vojvode Dobrnjca

lokal, 99m2, prizemlje, CG, podno grejanje, tri klime, internert, alarm, sigurnosne kamere, izlog

Prodaje se moderan, luksuzan i opremljen lokal ukupne površine 99 m² (92 m² uknjiženo + 7 m² stakleni podest), sa dva ulaza i reprezentativnim izlogom od kaljenog stakla (nosivost 2T). Lokal je na dve etaže, kompletno renoviran, idealan za kancelarije, showroom, salon ili studio.

Enterijer:
• MDF kuhinja sa belom tehnikom
• Luksuzno kupatilo
• Ugradni plakari i garderober sa rasvetom
• Ostava

Grejanje i hlađenje:
• Grejanje na toplovod
• Podno grejanje (lokal + trotoar)
• Tri klima uređaja LG ARTCOOL Stylist Inverter

Tehnika i sigurnost:
• SBB internet, podni izvodi za IT opremu
• BOSE 5.1 audio sistem
• Light design, alarm i sigurnosne kamere

Uknjižen na 92m2.

Agencijska provizija 2%

Agent: Lazar Karadžić 065/36-02-507 (licenca br.3343)






0/1000