pregled nekretnine ID: 363185
prodaja

154m² 198.000€
Beograd, Voždovac, Farmaceutski fakultet, Hajduk Stojka

Objavljen: 06.10.2025. / Izmenjen: 06.10.2025.


Tip: stan

Cena: 198000.00 EUR

Površina: 154.00 m2

Grad: Beograd

Opština: Voždovac

Deo: Farmaceutski fakultet

Ulica: Hajduk Stojka

Sprat: 2

Spratnost: 2

Soba: 4

Godina izgradnje: 2023

Prijavi problem  |  Pošalji na e-mail


Kontakt:

Moj Kvadrat doo

011/334 88 36

065/303 94 39

http://www.kvadratnekretnine.com

Opis:

  • Uknjiženo
  • Telefon
  • Klima
  • Parking
  • Interfon

Voždovac, Farmaceutski fakultet - Hajduk Stojka

4.0, 154m2, dva francuska balkona, 2/2, EG, klima, telefon, interfon, parking

Lep, svetao, prostran dupleks u mirnom kraju, okružen zelenilom. Savršen za porodičan život ili za one koji žele udobnost i tišinu, a opet blizu svim gradskim sadržajima. Stan pruža predivan pogled na Košutnjak.

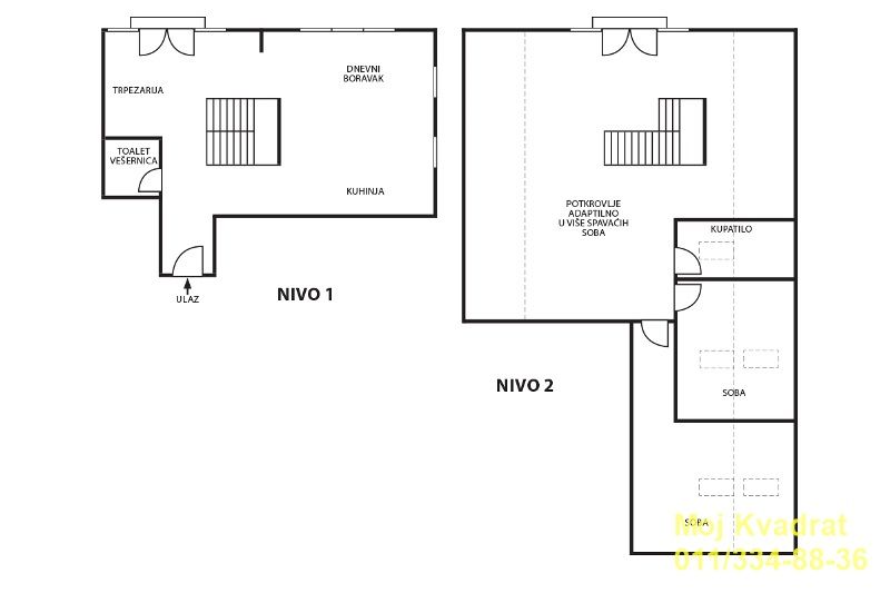
Prostire se na dve etaže, što stanu daje veću vrednost i komfor. Donji nivo stana se sastoji od velikog dnevnog boravka, trpezarije, funkcionalne kuhinje i kupatila. Gornji nivo ima dve spavaće sobe, kupatilo i otvoren prostor pogodan za radnu sobu ili još jednu spavaću sobu.

Ispred i iza zgrade se nalazi parking.

Uknjižen na 104m2, a stvarna merena kvadratura iznosi 154m2.

Agencijska provizija 2%

Agent: Snežana Krstić: 065/34-35-128 (licenca br. 4106)






0/1000