pregled nekretnine ID: 363374
prodaja

151m² 1.350.000€
Beograd, Vračar, Centar (Vračar), Lazarevićeva

Objavljen: 11.10.2025. / Izmenjen: 11.10.2025.


Tip: stan

Cena: 1350000.00 EUR

Površina: 151.00 m2

Grad: Beograd

Opština: Vračar

Deo: Centar (Vračar)

Ulica: Lazarevićeva

Sprat: 6

Spratnost: 7

Soba: 4

Prijavi problem  |  Pošalji na e-mail


Kontakt:

Moj kvadrat doo

011/334 8836

065/3039439

www.kvadratnekretnine.com

Opis:

  • Uknjiženo
  • Lift
  • Parking
  • Centralno grejanje
  • Kanalizacija
  • Terasa
  • Interfon
  • Podrum

Vračar, centar - Lazarevićeva

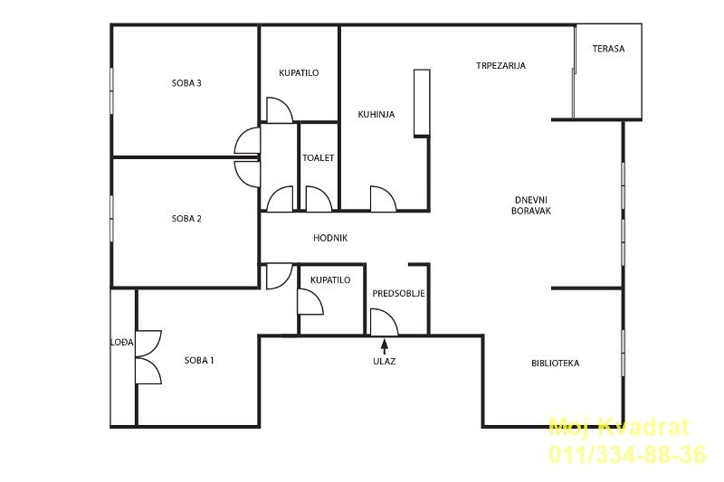
4.0, 151m2 (terasa 6m2 + lođa 3m2), 6/7, CG, lift, interfon, podrum, garaža

U ponudi luksuzan stan koji pruža udobnost, eleganciju i prelep pogled. Funkcionalan, lepo uređen stan smešten u centru grada, u neposrednoj blizini Tašmajdana, Slavije, Skupštine i Resavske ulice. Smešten na atraktivnoj lokaciji, a u mirnoj ulici, nudi brz i dobro povezan pristup svim bitnim delovima grada.

Stan je moderno uređen sa pažljivo odabranim materijalima i nameštajem, što ističe njegov sofisticirani dizajn. Svaka prostorija je pažljivo i sa ukusom osmišljena i uređena, kombinujući moderan stil sa toplinom doma. Stan je dosta osvetljen, poseduje dosta prozora, što stvara svetlu i prijatnu atmosferu.

Iz ulaznog hodnika stan se deli na dnevni i spavaći blok. Prostrani dnevni boravak je iz dva dela, kuhinja je odvojena, a iz trpezarijskog prostora se izlazi na lođu. Spavaći blok se sastoji od velike master sobe i još dve spavaće sobe. Stan poseduje dva velika kupatila i gostinjski toalet. Iz dnevnog boravka se izlazi na terasu sa prelepim pogledom na grad i crkvu Svetog Marka.

U okviru zgrade se nalazi garaža, koja je ozidana i zatvorena rolo vratima, ukupne površine 22m2.

U blizini se nalaze svi sadržaji neophodni za urbani način življenja (škole, restorani, prodavnice...).

Uknjižen na 146m2 korisne površine.

Agencijska provizija 2%

Agent: Snežana Krstić 065/34-35-128 (licenca br.4106)






0/1000