pregled nekretnine ID: 364654
prodaja

61m² 213.500€
Beograd, Zvezdara, Cvetkova pijaca, Majke Kujundžić

Objavljen: 21.11.2025. / Izmenjen: 21.11.2025.


Tip: stan

Cena: 213500.00 EUR

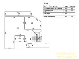
Površina: 61.00 m2

Grad: Beograd

Opština: Zvezdara

Deo: Cvetkova pijaca

Ulica: Majke Kujundžić

Sprat: 2

Spratnost: 4

Soba: 2

Godina izgradnje: 2025

Prijavi problem  |  Pošalji na e-mail


Kontakt:

Moj Kvadrat doo

011/334 88 36

065/303 94 39

http://www.kvadratnekretnine.com

Opis:

  • Telefon
  • Lift
  • Parking
  • Kanalizacija
  • Novogradnja
  • Terasa
  • Interfon

Zvezdara, Cvetkova pijaca - Majke Kujundžić

2.0, 61m2 (terasa 7m2), 2/4, podno grejanje, lift, telefon, interfon, garaža

U ponudi su novi, dvosobni, moderno projektovani stanovi u kvalitetnoj stambenoj zgradi na odličnoj lokaciji na Zvezdari, u ulici Majke Kujundžić. Zgrada je izvedena po savremenim standardima gradnje, sa visokokvalitetnim materijalima, energetskom efikasnošću i odličnom zvučnom i toplotnom izolacijom.

Funkcionalan raspored i maksimalna iskorišćenost prostora, velike staklene površine i obilje prirodne svetlosti, izuzetno završno uređenje stanova!

Karakteristike zgrade:
– moderna fasada;
– lift nove generacije;
– video-interfon i kontrolisani ulaz;
– podzemna garaža u okviru objekta;
– mirno i izuzetno povezano okruženje (neposredna blizina doma zdravlja, pijace, škola, vrtića, prevoza, prodavnica).

Uz stanove su opciono dostupna parking mesta u podzemnoj garaži ispod zgrade po ceni od 26.000€ bez uračunatog PDV-a.

U cenu stana je uračunat PDV.

Građevinska dozvola.

Agencijska provizija 2%.






0/1000