pregled nekretnine ID: 366988
prodaja

53m² 205.000€
Beograd, Savski Venac, Senjak, Sitnička

Objavljen: 10.02.2026. / Izmenjen: 10.02.2026.


Tip: stan

Cena: 205000.00 EUR

Površina: 53.00 m2

Grad: Beograd

Opština: Savski Venac

Deo: Senjak

Ulica: Sitnička

Soba: 2.5

Prijavi problem  |  Pošalji na e-mail


Kontakt:

Moj Kvadrat doo

011/334 88 36

065/303 94 39

http://www.kvadratnekretnine.com

Opis:

  • Uknjiženo
  • Telefon
  • Kanalizacija
  • Terasa
  • Interfon

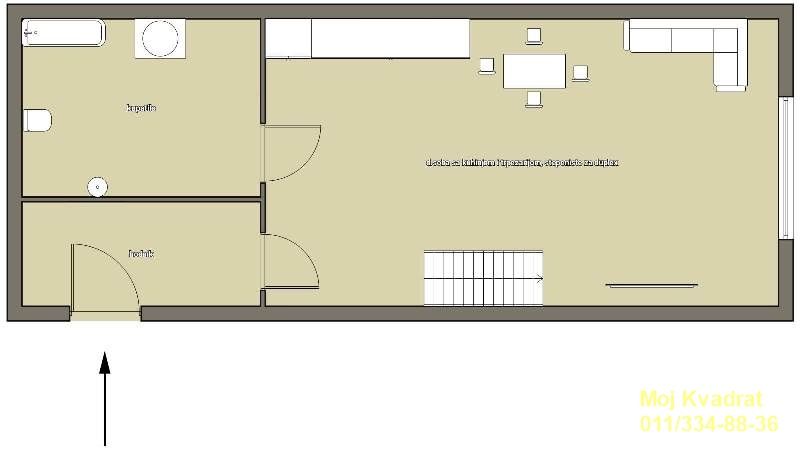
Savski venac, Senjak - Sitnička

2.5, 53m2, terasa, PR+I, EG, telefon, interfon

Hitna prodaja stana - renoviran dupleks na Senjaku, pored BIGZ-a.

Ima dve etaže. Donja etaža se sastoji iz hodnika, dnevno - trpezarijskog dela i kupatila. Stepenice u dnevnom boravku vode do gornje etaže u kojoj se nalaze hodnik, dve spavaće sobe i zastakljena terasa.

Nalazi se u mirnom kraju i ima dobru povezanost sa ostalim delovima grada.

Uknjižen bez upisane kvadrature, merena kvadratura iznosi 53m2.

Agencijska provizija 2%

Agent: Vladimir Nikolić 065/27-10-107 (licenca br. 6571)






0/1000