pregled nekretnine ID: 367026
prodaja

91m² 377.000€
Beograd, Stari grad, Donji Dorćol, Šantićeva

Objavljen: 11.02.2026. / Izmenjen: 11.02.2026.


Tip: stan

Cena: 377000.00 EUR

Površina: 91.00 m2

Grad: Beograd

Opština: Stari grad

Deo: Donji Dorćol

Ulica: Šantićeva

Soba: 4

Godina izgradnje: 1930

Prijavi problem  |  Pošalji na e-mail


Kontakt:

Moj kvadrat doo

011/334-88-36

065/3039439

www.kvadratnekretnine.com

Opis:

  • Uknjiženo
  • Kanalizacija
  • Interfon
  • Podrum

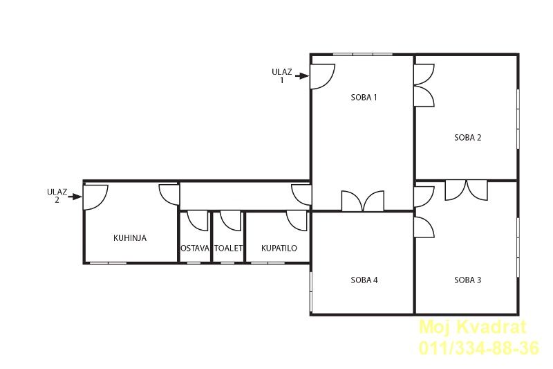
Stari grad, Donji Dorćol - Šantićeva

4.0, 91m2, VPR/2, grejanje na struju, interfon, podrum

U ponudi za prodaju autentičan, četvorosoban, salonski stan (visina plafona 3.40m) u neposrednoj blizini Bajlonijeve pijace. Stan je u izvornom stanju, trostrano je orijentisan i pozicioniran na visokom prizemlju zgrade koja ima svoje dvorište.

Sastoji se od četiri izuzetno prostrane sobe, kuhinje, kupatila, toaleta i ostave. Takođe, stan poseduje pripadajući podrum od 14m2.

Odličan potencijal za život ili poslovni prostor.

Uknjižen na 91m2.

Agencijska provizija 2%

Agent: Svetlana Todorov 066/239-141 (licenca br.6305)






0/1000