pregled nekretnine ID: 369355
prodaja

158m² 825.000€
Beograd, Vračar, Hram Svetog Save, Stojana Protića

Objavljen: 27.04.2026. / Izmenjen: 27.04.2026.


Tip: stan

Cena: 825000.00 EUR

Površina: 158.00 m2

Grad: Beograd

Opština: Vračar

Deo: Hram Svetog Save

Ulica: Stojana Protića

Sprat: 1

Spratnost: 5

Soba: 4

Godina izgradnje: 2023

Prijavi problem  |  Pošalji na e-mail


Kontakt:

Moj Kvadrat doo

011/334 88 36

065/303 94 39

http://www.kvadratnekretnine.com

Opis:

  • Klima
  • Lift
  • Centralno grejanje
  • Kanalizacija
  • Novogradnja
  • Terasa

Vračar, Hram Svetog Save - Stojana Protića

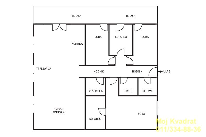
4.0, 158m2 (terasa 29m2), 1/5, CG, klima, lift, video nadzor

Odličan, svetao četvorosoban stan u kvalitetnoj novogradnji na prestižnoj lokaciji kod Hrama Svetog Save.

Prostorije: prostran (58m2) dnevni boravak sa kuhinjom i trpezarijom (open space), glavna spavaća soba (23m2) sa sopstvenim kupatilom, dve manje sobe, kupatilo, garderober, vešernica, toalet i velika terasa.

Objekat je visokog kvaliteta gradnje, fasada je obložena fundermaksom, kamenom i staklom. Fasadna stolarija je od aluminijumskih profila sa termomostom, a svi spoljašnji otvori su sa ugrađenim roletnama sa uvoznim okovima. Ulazna vrata su protivprovalna, marke Bosal. Unutrašnja stolarija-vrata marke Bosal. Spoljna stolarija je alu-drvo sa troslojnim staklom. Sanitarije prve klase strane proizvodnje. Hlađenje putem klima uređaja. Objekat je obezbeđen video nadzorom.

U cenu stana je uračunat PDV.

Mogućnost kupovine parking mesta po ceni od 40.000 eura sa uračunatim PDV-om.

Očekivani rok za završetak radova je kraj 2023. godine.

Građevinska dozvola.

BEZ PROVIZIJE ZA KUPCE.

Agent Sava Vuletić: 062/14-57-616 (licenca br.3573)






0/1000